Moderne 3- Zimmerwohnung mit Balkon & Fahrstuhl im Hittfelder Zentrum!




















Das Objekt
Dieses Mehrfamilienhaus mit insgesamt 6 Wohneinheiten, mitten im Hittfelder Ortskern, wurde 2017 errichtet. Die Energieeffizienz des Gesamtobjektes entsprich dem KfW 55-Standard. Durch die automatische Be- und Entlüftung sowie die solarunterstützte Gas-Brennwertheizung (Fußbodenheizung) sind dauerhaft geringe Bewirtschaftungskosten gewährleistet. Sämtliche Fenster sind 3-fach verglast und teilweise mit Rollläden ausgestattet.
Diese moderne Wohnung besticht durch lichtdurchflutete Räume, eine hochwertige Einbauküche mit wertigen Elektrogeräten sowie eine helle, geschmackvolle Sanitärausstattung. Der z.T. überdachte Balkon ist nach Westen ausgerichtet und eignet sich ideal, um den Abend ausklingen zu lassen. Ein Aufzug bringt Sie komfortabel bis vor die Wohnungstür!
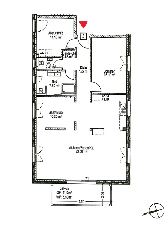
Die insgesamt ca. 113 m² Wohnfläche sind verteilt auf 3 Zimmer und den anteiligen Balkon. Die offene Küche und der lichtdurchflutete Wohnbereich bilden mit ca. 52 m² das Herzstück der Wohnung. Weiter steht ein gut möblierbares Schlafzimmer, ein z.T. durch Glaselemente abgeteiltes Arbeitszimmer, ein Tageslichtbad mit großer Dusche sowie ein Gäste-WC, ebenfalls mit einem Fenster versehen, zur Verfügung.
In der Wohnung befindet sich ein geräumiger Hauswirtschaftsraum mit Anschlüssen für Waschmaschine und Trockner. Ein PKW-Stellplatz in der Carportanlage vor dem Haus kann für zusätzlich 60,- Euro mtl. mit angemietet werden.
In der Nebenkostenvorauszahlung i.H.v. 250,- € sind sämtliche Kosten, bis auf Strom, Internet und TV, enthalten.
Aufgrund der zentralen Lage, der Barrierefreiheit sowie der stimmigen Raumaufteilung eignet sich diese schöne Wohnung für jung & alt gleichermaßen. Gern stehen wir Ihnen für eine individuelle Besichtigung der Räumlichkeiten nach Terminabsprache zur Verfügung. Rufen Sie uns an und nennen Sie uns Ihren Terminwunsch, wir arrangieren das für Sie!
Die Lage
Diese Wohnung befindet sich direkt im Hittfelder Zentrum, einem überaus beliebten Ort in der südlich von Hamburg befindlichen Gemeinde Seevetal. Diverse Einkaufsmöglichkeiten und gehobene Gastronomie sind fußläufig erreichbar. Fachärzte, Schulen aller Zweige und Kindergärten befinden sich unweit des Zentrums. Abwechslungsreiche Freizeitgestaltung bieten ein Frei- und Hallenbad, zwei hochwertige Golfanlagen, Tennisplätze sowie die nur wenige Autominuten entfernte Lüneburger Heide.
Die Hamburger Innenstadt ist nur 25 Kilometer entfernt und über Bus und Bahn sowie per PKW über die Anschlussstellen zur A1 und A7 gut und komfortabel erreichbar. Das charmante Hittfeld, welches 2007 sein 900 jähriges Bestehen feierte, besticht durch ein gehobenes Ambiente in ländlicher Umgebung!
Hinweise zum GELDWÄSCHEGESETZ gemäß § 2 Absatz 1 Nr. 10 GWG, für Immobilienmakler: Nach dem Geldwäschegesetz sind wir als Immobilienmakler verpflichtet, die Identität unserer Kunden festzustellen und zu überprüfen. Die Überprüfung der Identität erfolgt bei natürlichen Personen durch Einsicht der relevanten Daten in den Ausweispapieren und einer Ausweiskopie, die in der Akte abgelegt wird. Auf der Kopie muss handschriftlich vermerkt werden, dass diese mit dem Original übereinstimmt. Die Ausweiskopie zur Identifizierung und Überprüfung der Identität müssen laut GWG 5 Jahre.aufbewahrt werden.